1 / 25
Active
on

140 Slickrock Road Unit F4
Burnsville, NC 28714

$540,000
~ $461 per sqft
2
Beds
2.0
Baths
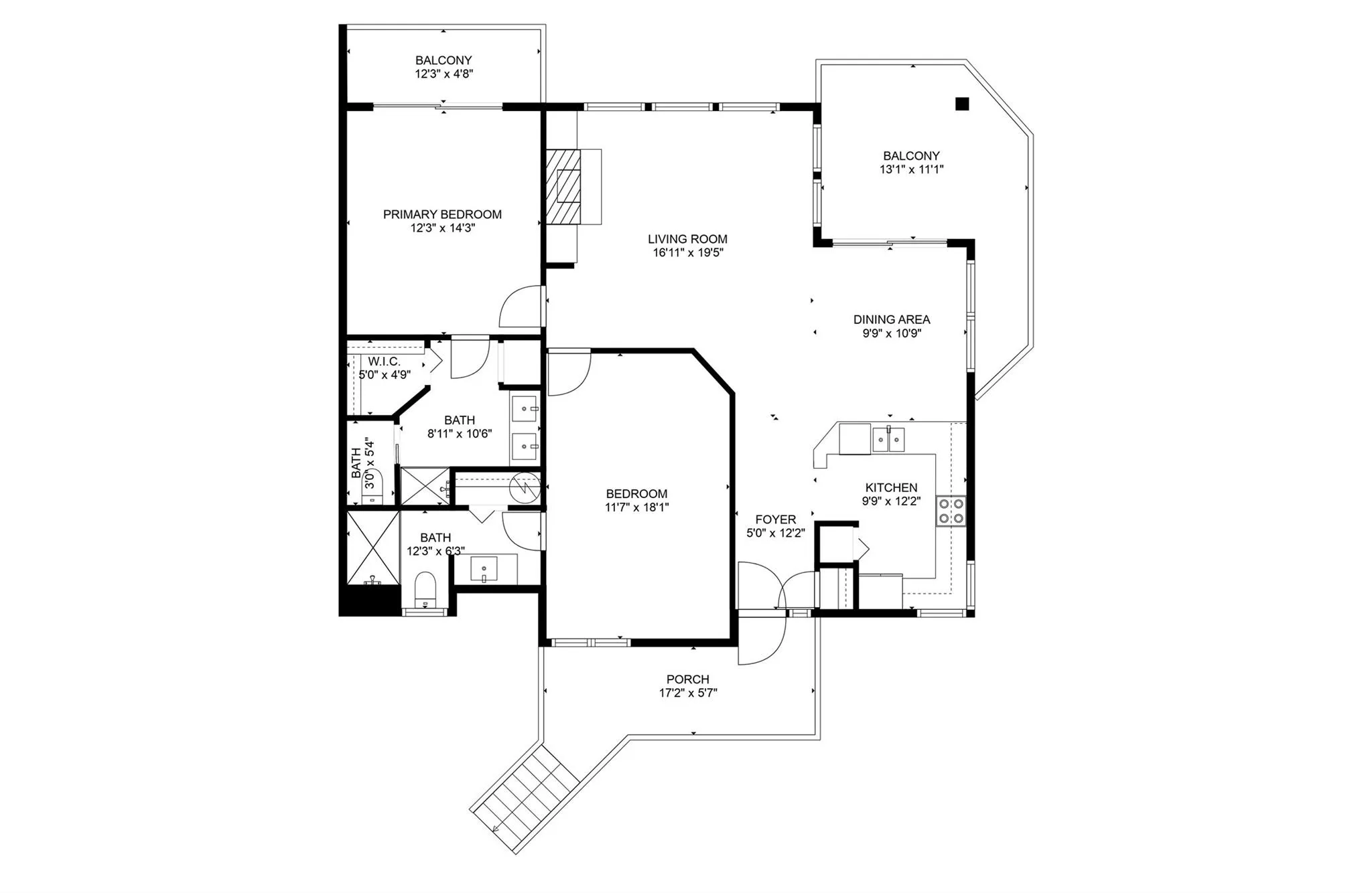
1171
Sqft

Condominium
Built in 1994
0.0 Acres Lot

About this home

Condo faces west and has an incredible 180 degree long range mountain view! The sellers have completely updated this Villa condo. Almost everything is new and it has never been slept in since the remodel: carpet in the bedrooms are made to stop any liquid from getting to your pad, great if you have pets! Shower heads are incredible in both bathrooms, they spared no expense with this remodel! Fully furnished! Sellers offering a $1000 credit at closing to buy washer and dryer. Mountain Air is a gated community, just 35 minutes from Asheville. All owners have access to 6 parks and 7 miles of hiking trails. Mountain Air Country Club is a private club at the top of the mountain with its own airstrip, golf, tennis, pickle ball courts, nature center, kids' day camp, golf shop, golf learning center and 3 dining choices, including the mountain market. The average daily temperature is 75° in the summer.

Schools

Elementary School - Blue Ridge

Middle School Cane River

High School Mountain Heritage

HOA

  • Name: BraesaellMgmt Co
  • Phone: 828-682-1578
  • Fee: $377 (Monthly)
  • Monthly Fee: $377.0

Secondary HOA

  • Name: BraesaellMgmt Co
  • Phone: N/A
  • Fee: $525 (Monthly)
  • Monthly Fee: $525.0

Parking

Open Parking Yn · true

Open Parking Spaces · 2

Interior

Features · Built-in Features, Cable Prewire, and Open Floorplan

Appliances · Dishwasher, Disposal, Dryer, Electric Oven, Electric Water Heater, Microwave, Plumbed For Ice Maker, Refrigerator, Self Cleaning Oven, and Washer

Flooring · Carpet, Tile, and Wood

Heating · Heat Pump

Cooling · Ceiling Fan(s), Central Air, and Heat Pump

Laundry · In Unit

Fireplace ·

Community Features

Airport/Runway
Business Center
Clubhouse
Fitness Center
Game Court
Gated
Golf
Helipad
Hot Tub
Outdoor Pool
Sauna
Sport Court
Tennis Court(s)
Walking Trails

Exterior

Road Surface Type · Asphalt and Paved

Road Responsibility · Private Maintained Road

Utilities

Sewer · Public Sewer

Water Source · Community Well

Utilities · Cable Available, Underground Power Lines, and Wired Internet Available

Contact Agent

Contact Agent

Puma Realty Expert

Listed by Diane Vander Linden

WNC Mountain Realty Group LLC

828-231-3117

Last updated: October 14, 2025 14:54

140 Slickrock Road Unit F4

Contact Agent

Contact Agent

Puma Realty Expert